
Social Housing In Mexico
3D Printed Homes
Client
Buildner & Kingspan Group
Location
Mexico
Status
Completed
Year
2025
Social housing in mexico
Mexico’s current social housing model mass-produces thousands of identical units—scaling problems instead of solving them. These developments sprawl across the landscape, consuming land, destroying ecosystems, and straining infrastructure.

Between 2007 and 2020, natural green space in areas like Caucel, Yucatán, shrank from 9.8 km² to just 2.3 km²—a clear sign of the model’s unsustainable impact.

Homes are built with low-cost materials, with poor ventilation, limited light, and layouts that can’t adapt as families grow. Surrounding neighborhoods lack parks, services, and public transport, creating car-dependent communities with low quality of life.
In 2023, Mexico’s social housing program issued 434,029 loans, 43% to people under 30. For many young Mexicans, this means decades of mortgage payments for houses that fail to meet their long-term needs.
A Sustainable and scalable Solution
Mexico’s housing crisis is an opportunity to replace sprawling, car-dependent suburbs with compact, people-focused communities.

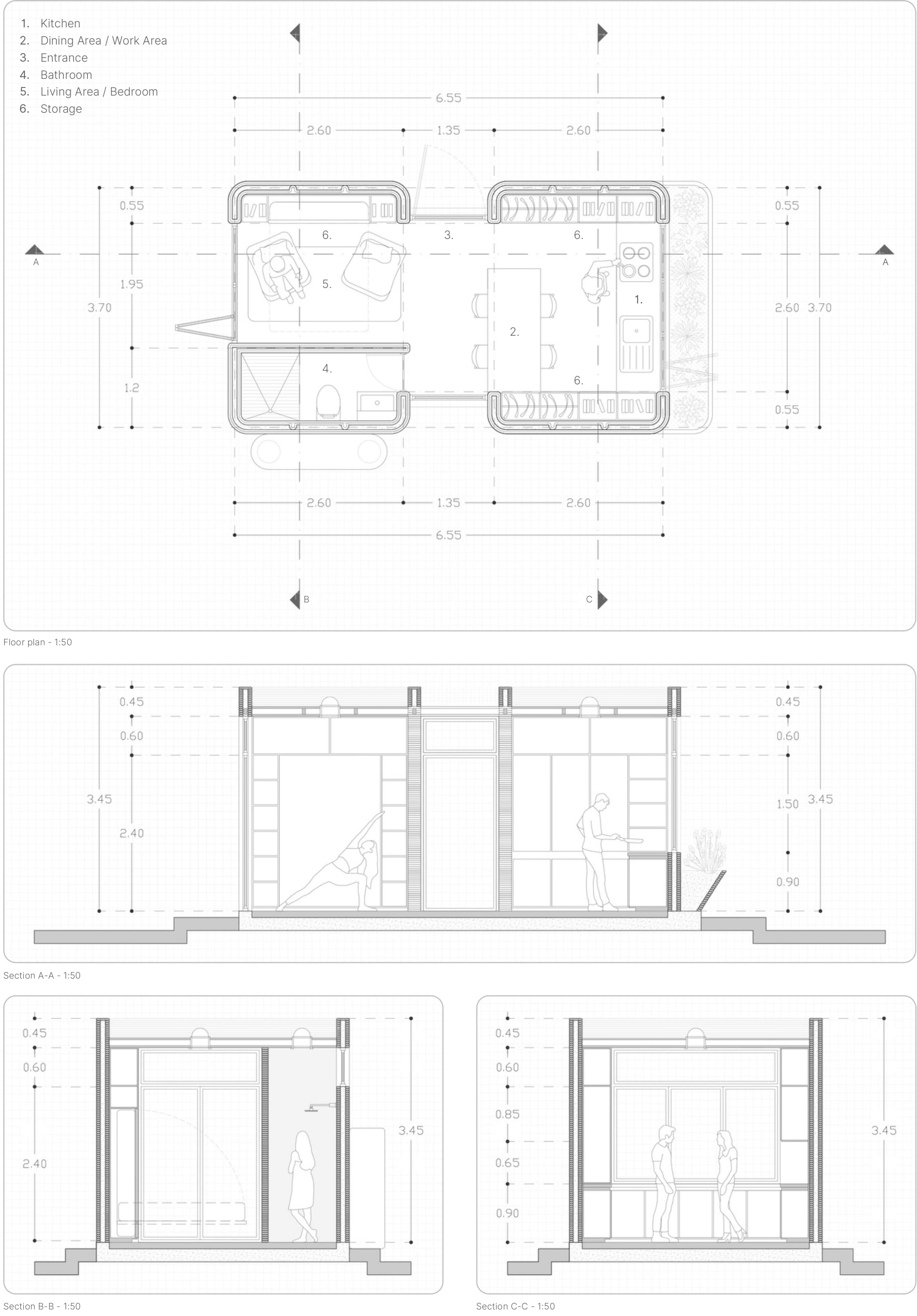
This proposal introduces a walkable green masterplan centered on high-quality microhomes, built using automated 3D printing with locally sourced clay to reduce cost, waste, and environmental impact.
Solar energy and rainwater systems enable off-grid living, while a compact layout creates space for gardens, shared areas, and vibrant community life—a scalable model for sustainable growth.



